INWENTARYZACJA HOTELU WE WROCŁAWIU
• WEJDŹ W RYSUNEK
INWENTARYZACJA GARAŻU W WARSZAWIE
• WEJDŹ W RYSUNEK
INWENTARYZACJA KAMIENICY W WARSZAWIE
• WEJDŹ W RYSUNEK
INWENTARYZACJA ELEWACJI W MSZCZONOWIE
• WEJDŹ W RYSUNEK
INWENTARYZACJA DWORCA PKP W SIERPCU
• WEJDŹ W RYSUNEK
INWENTARYZACJA KOŚCIOŁA I OŁTARZA W PŁOCKU
• WEJDŹ W RYSUNEK
INWENTARYZACJA SP NR 26 W WARSZAWIE
• WEJDŹ W RYSUNEK
INWENTARYZACJA SANKTUARIUM W JAZŁOWCU – UKRAINA
• WEJDŹ W RYSUNEK
INWENTARYZACJA HALI PRODUKCYJNEJ W WARSZAWIE
• WEJDŹ W RYSUNEK
INWENTARYZACJA KOŚCIOŁA W BIAŁEJ PODLASKIEJ
• WEJDŹ W RYSUNEK
INWENTARYZACJA HISTORYCZNEGO DOMU W WOLI SZYDŁOWSKIEJ
• WEJDŹ W RYSUNEK
INWENTARYZACJA ELEWACJI BANKU W CZŁUCHOWIE
• WEJDŹ W RYSUNEK
INWENTARYZACJA WILLI PRZY FORCIE BEMA W WARSZAWIE
• WEJDŹ W RYSUNEK
INWENTARYZACJA KAMIENICY W CZĘSTOCHOWIE
• WEJDŹ W RYSUNEK
INWENTARYZACJA KAMIENICY W WARSZAWIE
• WEJDŹ W RYSUNEK
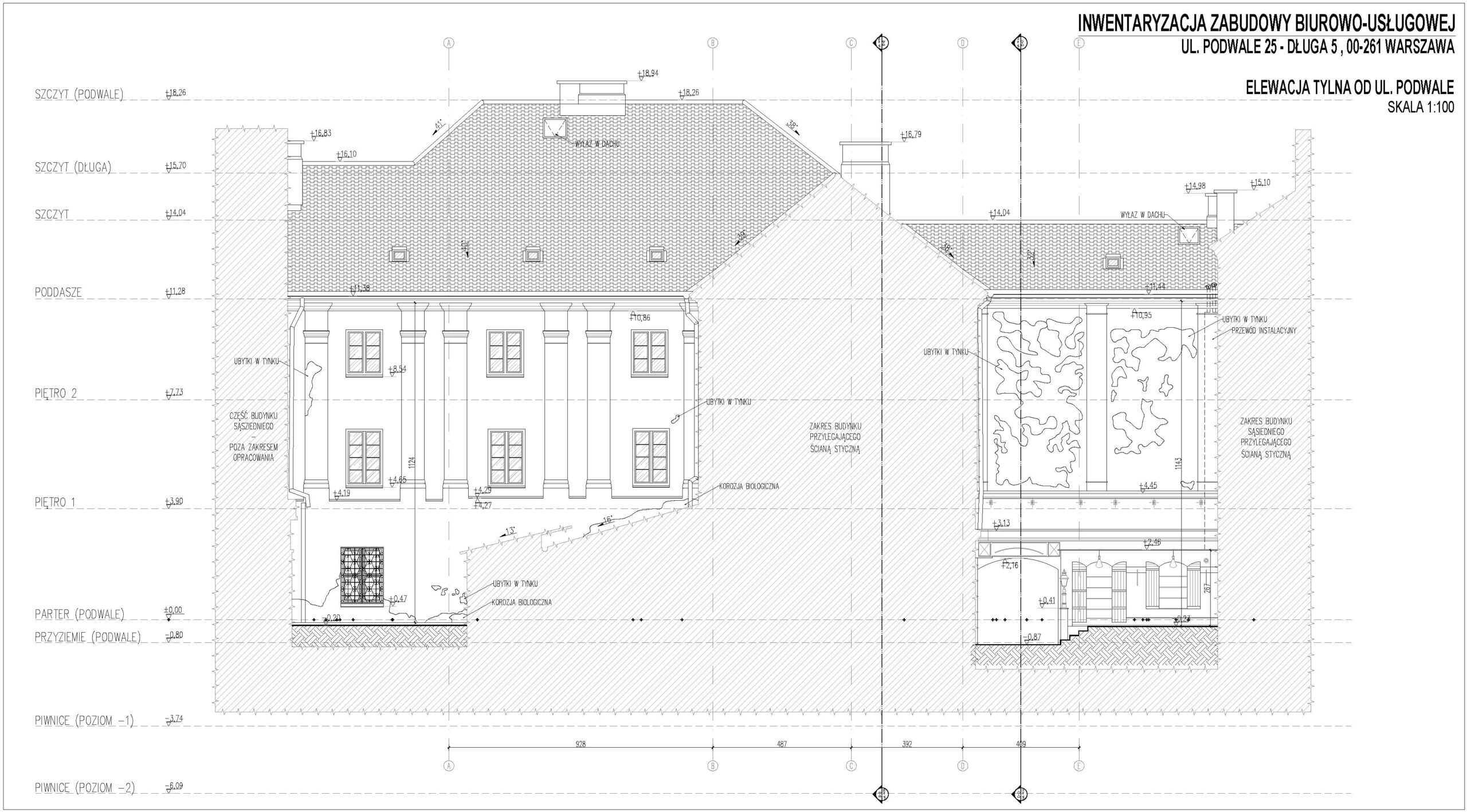
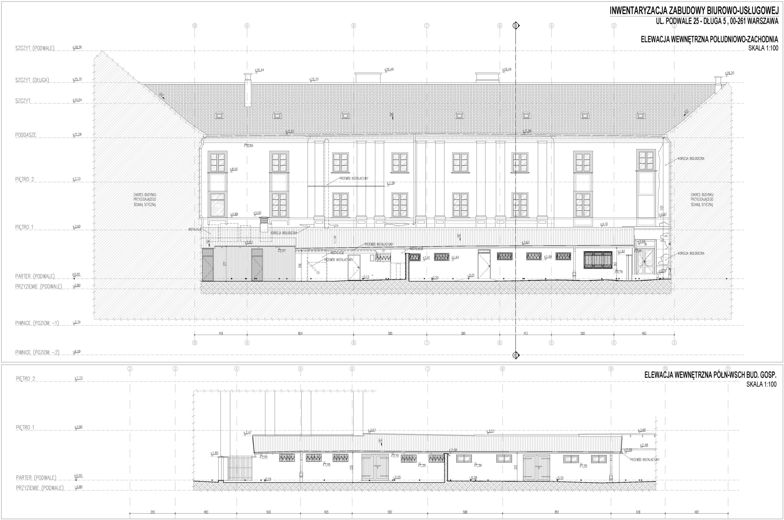
INWENTARYZACJA ELEWACJI I STOLARKI OKIENNEJ W WARSZAWIE
• WEJDŹ W RYSUNEK
INWENTARYZACJA ELEWACJI HISTORYCZNEGO OBIEKTU – WARSZAWA
• WEJDŹ W RYSUNEK
INWENTARYZACJA WIĘŹBY KOŚCIOŁA W NASIELSKU
• WEJDŹ W RYSUNEK
INWENTARYZACJA ZABUDOWY W WARSZAWIE – ELEWACJE
• WEJDŹ W RYSUNEK
INWENTARYZACJA STARYCH WAGONÓW PKP W WYSZKOWIE
• WEJDŹ W RYSUNEK
INWENTARYZACJA ELEWACJI KOŚCIOŁA MIESZKALNEGO W IWANISKACH
• WEJDŹ W RYSUNEK
INWENTARYZACJA WIĘŹBY DACHU KOŚCIOŁA W KAMIEŃCZYKU
• WEJDŹ W RYSUNEK
INWENTARYZACJA ZABYTKOWEJ WILLI W RADOMIU
• WEJDŹ W RYSUNEK
INWENTARYZACJA PARKINGU W KAJETANACH
• WEJDŹ W RYSUNEK
INWENTARYZACJA SP NR 3 / LO NR 1 W BŁONIU
• WEJDŹ W RYSUNEK
INWENTARYZACJA ELEWACJI I PIWNIC SP NR 4 W BŁONIU
• WEJDŹ W RYSUNEK
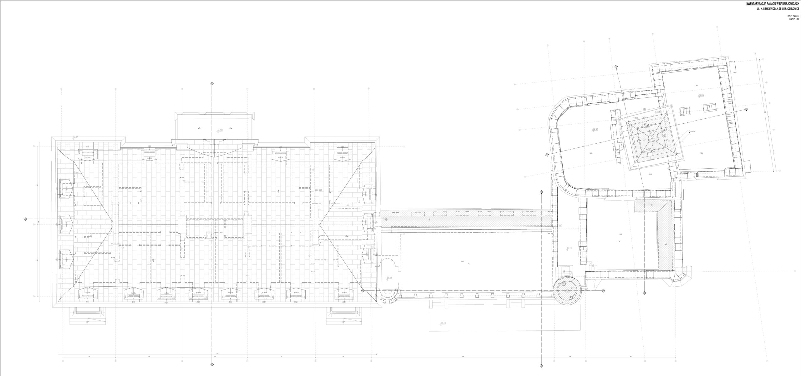
INWENTARYZACJA PAŁACU W RADZIEJOWICACH – ELEWACJE
• WEJDŹ W RYSUNEK